Vantagens do produto
- Excelente resistência Pid:O painel solar Risen 410W possui excelente resistência à degradação potencial induzida (PID). Isso significa que o painel pode suportar e resistir aos efeitos nocivos de alta tensão e condições climáticas extremas, como alta umidade, alta temperatura e locais de alta altitude, tornando-o uma escolha ideal para aplicações solares fora da rede ou dentro da rede.
- Inspeção 100% EL de estágio duplo garantindo produto livre de defeitos:O painel solar Risen 410W passou por um processo de inspeção 100% eletroluminescente (EL) de dois estágios, garantindo um produto livre de defeitos. Este processo rigoroso garante a mais alta qualidade de cada painel, assegurando o máximo desempenho durante uma vida útil prolongada.

- Alta eficiência:O painel solar Risen 410W tem uma taxa de eficiência impressionante, proporcionando elevados rendimentos energéticos com menos painéis. Essa tecnologia garante que você alcance a máxima geração de energia, seja para uso residencial ou comercial.
- Durabilidade e confiabilidade:Os painéis solares ressuscitados são feitos com materiais e tecnologia de alta qualidade, proporcionando durabilidade e confiabilidade superiores. Isso os torna ideais para ambientes agressivos e podem suportar condições extremas, como granizo, ventos fortes e cargas de neve.
- Custo-beneficio:Os painéis solares Risen de 410 W são econômicos e oferecem uma excelente relação custo-benefício. Com classificações de alta eficiência e baixas taxas de degradação, são a escolha ideal para proprietários de residências e organizações que procuram reduzir as suas faturas de energia e a pegada de carbono. Os painéis oferecem uma fonte de energia confiável e sustentável, garantindo geração de energia econômica e de longo prazo.

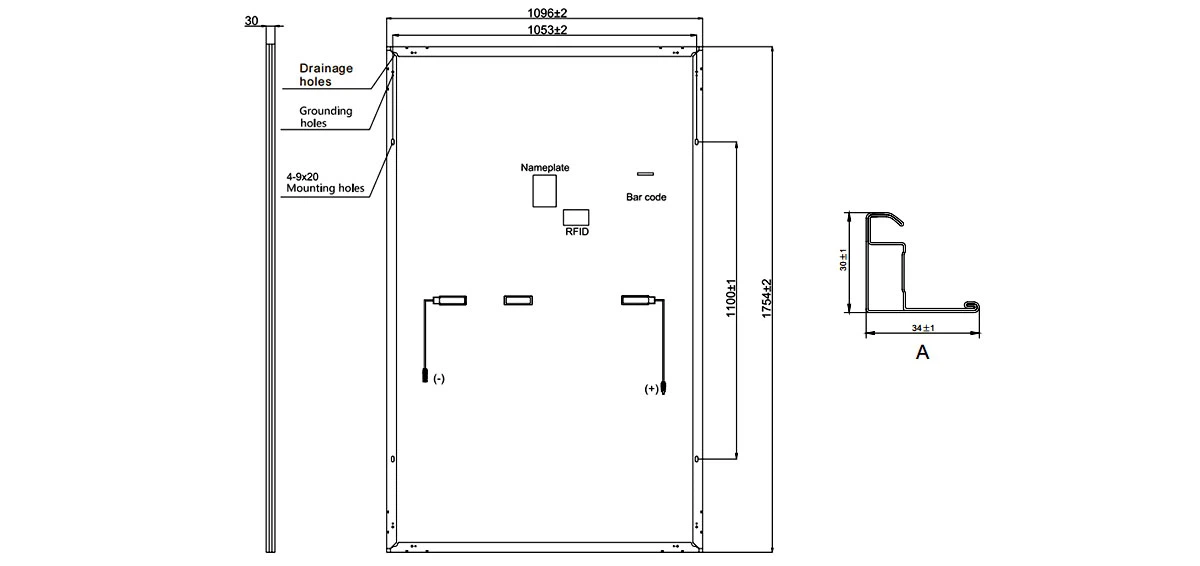
Desenho de Engenharia (mm)

Dados Mecânicos
|
Células solares |
Monocristalino |
|
Configuração de célula |
120 células (5×12+5×12) |
|
Dimensões do Módulo |
1754×1096×30mm |
|
Peso |
22kg |
|
Superstrato |
Alta transmissão, baixo teor de ferro, vidro ARC temperado |
|
Substrato |
Folha traseira branca |
|
Quadro |
Liga de aço de alta resistência, preta |
|
Caixa J |
Potted, IP68, 1500VDC, 3 diodos de bypass Schottky |
|
Cabos |
4.0mm², positivo(+)350mm, negativo(-)230mm (conector incluído) |
|
Conector |
Twinsel ressuscitado PV-SY02, IP68 |

Parâmetros elétricos no STC
|
Número do modelo |
RSM40-8-395M |
RSM40-8-400M |
RSM40-8-405M |
RSM40-8-410M |
RSM40-8-415M |
RSM40-8-420M |
|
Potência nominal em Watts-Pmax |
395W |
400W |
405W |
410W |
415W |
420W |
|
Tensão de Circuito Aberto-Voc |
41.00V |
41.30V |
41.60V |
41.90V |
42.20V |
42.49V |
|
Corrente de curto-circuito-Isc |
12.27A |
12.34A |
12.40A |
12.47A |
12.53A |
12.59A |
|
Tensão Máxima de Potência-Vmpp |
34.14V |
34.39V |
34.64V |
34.89V |
35.14V |
35.38V |
|
Corrente de Potência Máxima-Impp |
11.58A |
11.64A |
11.70A |
11.76A |
11.82A |
11.88A |
|
Eficiência do Módulo (%) |
20.5% |
20.8% |
21.1% |
21.3% |
21.6% |
21.8% |
|
STC |
Irradiância 1000 W/m², temperatura da célula 25 graus, massa de ar AM1.5 de acordo com EN 60904-3 |
|||||
Parâmetros elétricos no NMOT
|
Número do modelo |
RSM40-8-395M |
RSM40-8-400M |
RSM40-8-405M |
RSM40-8-410M |
RSM40-8-415M |
RSM40-8-420M |
|
Potência máxima-Pmax |
299.4W |
303.1W |
306.9W |
310.7W |
314.5W |
318.3W |
|
Tensão de Circuito Aberto-Voc |
38.13V |
38.41V |
38.69V |
38.97V |
39.25V |
39.52V |
|
Corrente de curto-circuito-Isc |
10.07A |
10.12A |
10.17A |
10.22A |
10.27A |
10.33A |
|
Tensão Máxima de Potência-Vmpp |
31.68V |
31.91V |
32.15V |
32.38V |
32.61V |
32.83V |
|
Corrente de Potência Máxima-Impp |
9.45A |
9.50A |
9.55A |
9.60A |
9.65A |
9.69A |
|
NMOT |
Irradiância a 800 W/m², temperatura ambiente 20 graus, velocidade do vento 1 m/s |
|||||

Temperatura e classificações máximas
|
Temperatura nominal de operação do módulo (NMOT) |
44 graus ±2 graus |
|
Coeficiente de temperatura de Voc |
-0,25%/grau |
|
Coeficiente de temperatura de Isc |
0,04%/grau |
|
Coeficiente de temperatura de Pmax |
-0,34%/grau |
|
Temperatura Operacional |
-40 grau ~+85 grau |
|
Tensão máxima do sistema |
1500V CC |
|
Classificação máxima do fusível da série |
20A |
|
Limitando a corrente reversa |
20A |
Cooperação de marca
A Jingsun tem o orgulho de anunciar sua parceria de longo prazo com inúmeras empresas de energia solar de alta qualidade. Nossa dedicação em fornecer produtos e serviços movidos a energia solar confiáveis, eficientes e sustentáveis é nossa força motriz. A colaboração com estas conceituadas empresas irá melhorar a nossa oferta de energia solar, introduzir produtos inovadores no nosso portfólio e melhorar a satisfação geral do cliente. Com um compromisso mútuo de fornecer qualidade e serviços excepcionais aos nossos clientes, estamos confiantes de que nossa parceria promoverá o crescimento e o sucesso de nossos negócios. A Jingsun está entusiasmada com o futuro à medida que trabalhamos em conjunto com estas empresas líderes em energia solar para moldar um futuro mais brilhante, mais limpo e sustentável.

Perguntas frequentes
P: O que é o painel solar Risen 410W e como funciona?
P: Quais são os benefícios de usar painéis solares Risen 410W?
P: Quão eficiente é o painel solar Risen 410W?
P: Quanto tempo dura o painel solar Risen 410W?
P: Como posso instalar o painel solar Risen 410W?
Tag: ressuscitou rsm40 8 410m, China ressuscitou rsm40 8 410m fabricantes, fornecedores, fábrica



